無錫厚浦環保科技有限公司生產網板式階梯格柵,砂水分離器,PAM加藥裝置,產品質量好 |
|
|
|
 |
|
無錫厚浦環保科技有限公司
史經理 15906151243
邵經理 15301530861
電話:0510-87830610
傳真:0510-87831340
網址:www.gf-cn.cn
郵箱:hopehb@126.com
地址:江蘇省宜興市高塍鎮塍文路18號 |
|
|
|
|
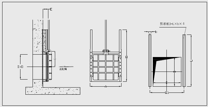
MZF型明桿式鑄鐵鑲銅方閘門
|
用途: |
|
常用于給水、排水、防汛等水利工程
|
|
結構與特點: |
|
本設備主要由門框、閘板、密封圈及可調式楔形壓塊等部件組成。閘門久用磨損后,其密封面可通過楔形壓塊的調整來保證正常工作。具有結構合理堅固、耐磨耐腐蝕性強、性能可靠;安裝、調試、使用、維護方便等特點。
|
|
主要技術參數: |
|
1、閘門應按圖示位置安裝、閘板設于迎水面;
2、閘板壓向門框允許大壓力0.1MPa;
3、閘板壓離門框允許大壓力0.02MPa;
4、密封工作部位滲漏量不大于1.25L/min m。
|
|
外形示意圖及安裝尺寸: |
|
|
|
|
|
型號規格
|
口徑
|
外 形 及 安 裝 尺 寸
|
D×D
|
A
|
b
|
c
|
E
|
H
|
L
|
L1
|
δ
|
MZF-300
|
300×300
|
456
|
150
|
200
|
83
|
580
|
580
|
456
|
12
|
MZF-400
|
400×400
|
556
|
150
|
250
|
83
|
680
|
680
|
556
|
12
|
MZF-500
|
500×500
|
656
|
150
|
310
|
83
|
780
|
780
|
656
|
12
|
MZF-600
|
600×600
|
790
|
150
|
360
|
123
|
900
|
900
|
790
|
12
|
MZF-700
|
700×700
|
940
|
150
|
420
|
135
|
1000
|
1000
|
940
|
12
|
MZF-800
|
800×800
|
1010
|
150
|
470
|
150
|
1200
|
1200
|
1010
|
12
|
MZF-1000
|
1000×1000
|
1210
|
150
|
580
|
163
|
1700
|
1700
|
1210
|
12
|
|
|
|
|
型號規格
|
口徑
|
外 形 及 安 裝 尺 寸
|
D×D
|
A
|
b
|
c
|
E
|
H
|
L
|
L1
|
δ
|
MZF-1200
|
1200×1200
|
1430
|
150
|
690
|
174
|
2000
|
2000
|
1430
|
12
|
MZF-1400
|
1400×1400
|
1630
|
150
|
800
|
174
|
2500
|
2500
|
1630
|
12
|
MZF-1600
|
1600×1600
|
1850
|
150
|
900
|
204
|
2800
|
2800
|
1850
|
12
|
MZF-1800
|
1800×1800
|
2050
|
150
|
1000
|
220
|
3200
|
3200
|
2050
|
12
|
MZF-2000
|
2000×2000
|
2270
|
150
|
1110
|
254
|
3700
|
3700
|
2270
|
12
|
MZF-2200
|
2200×2200
|
2480
|
150
|
1210
|
254
|
4100
|
4100
|
2480
|
12
|
MZF-2400
|
2400×2400
|
2660
|
150
|
1315
|
260
|
4500
|
4500
|
2660
|
12
|
|
|
|
|
|
|
型號規格
|
口徑
|
外 形 及 安 裝 尺 寸
|
D×D
|
A
|
b
|
c
|
E
|
H
|
L
|
L1
|
L2
|
δ
|
MZF-2600
|
2600×2600
|
2880
|
200
|
1410
|
280
|
4800
|
4800
|
2880
|
2600
|
12
|
MZF-2800
|
2800×2800
|
3080
|
200
|
1515
|
320
|
5200
|
5200
|
3080
|
2800
|
12
|
MZF-3000
|
3000×3000
|
3310
|
200
|
1620
|
320
|
5600
|
5600
|
3310
|
3000
|
12
|
MZF-3500
|
3500×3500
|
3820
|
200
|
1880
|
320
|
6500
|
6500
|
3820
|
3500
|
12
|
MZF-4000
|
4000×4000
|
4330
|
200
|
2130
|
360
|
7500
|
7500
|
4330
|
4000
|
12
|
MZF-4500
|
4500×4500
|
4830
|
200
|
2380
|
360
|
8500
|
8500
|
4830
|
4500
|
12
|
MZF-5000
|
5000×5000
|
5350
|
200
|
2650
|
360
|
9500
|
9500
|
5350
|
5000
|
12
|
|
|
|
|
|
|
|
|
|